Menu
Menu Residential Spaces Scott A. Stultz

Swapping
Spaces

Paoli, PA

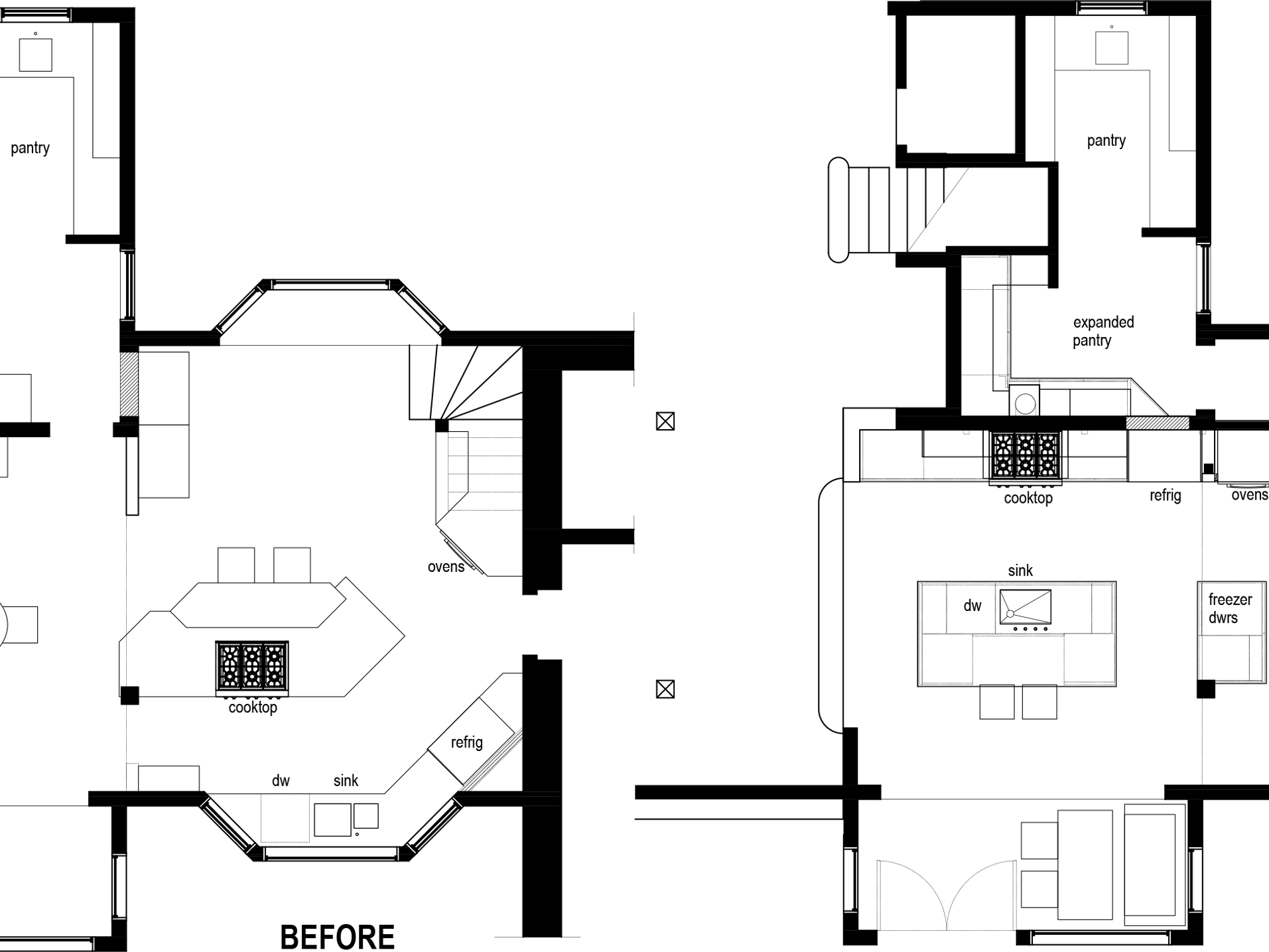
These empty nesters, not ready for condominium style downsizing yet, wanted a kitchen that suited their current lifestyle better than the room they’d remodeled 25 years ago. The original house dated back to 1740 and had been added to many times. Its square footage far exceeded what they needed, but the existing kitchen space had a low ceiling, felt dark, and although otherwise roomy and functional, couldn’t accommodate a table and seating. It also lacked an effective exhaust system for the island range top. Their vision was to add a cozy breakfast nook by pushing the existing space out six feet.

Instead, we moved the kitchen to the adjacent breakfast room, removing sections of wall and the header so that the spaces would flow together, and replaced the windows in the bay with floor to ceiling double hungs where the breakfast nook would go. Both rooms were painted white, including the previously stained tongue and groove wood cathedral ceiling, dramatically brightening the space. Access to the pantry was moved, and cabinetry matching the old cherry cabinets added to maximize its utility without just tearing it all out. Some of the old cherry kitchen cabinetry stayed in the breakfast room, where a beverage refrigerator took the old oven spot, across from which a bank of cabinets and shelves were repurposed to serve the breakfast nook. A quiet palette of colors and materials, crisp transitional style cabinetry, and well proportioned groupings of simple forms resulted in a clean, contemporary space, giving this lovely old home a new life.

Scott A. Stultz

Designer

Scott A. Stultz

Photography

Nora E. Stultz

Scott A. Stultz Logomark
scott a. stultz & associates
314 castine rd
p.o. box 772
castine, maine 04421
start a project

207-326-5051