Menu
Menu Residential Spaces Scott A. Stultz

Transformed
Church

Lancaster County, PA

From 2002 until 2021, Scott lived and had his studio in an historic former church. Built in 1850, it was extensively remodeled in 1906, then became a home after being retired from service almost a century later.

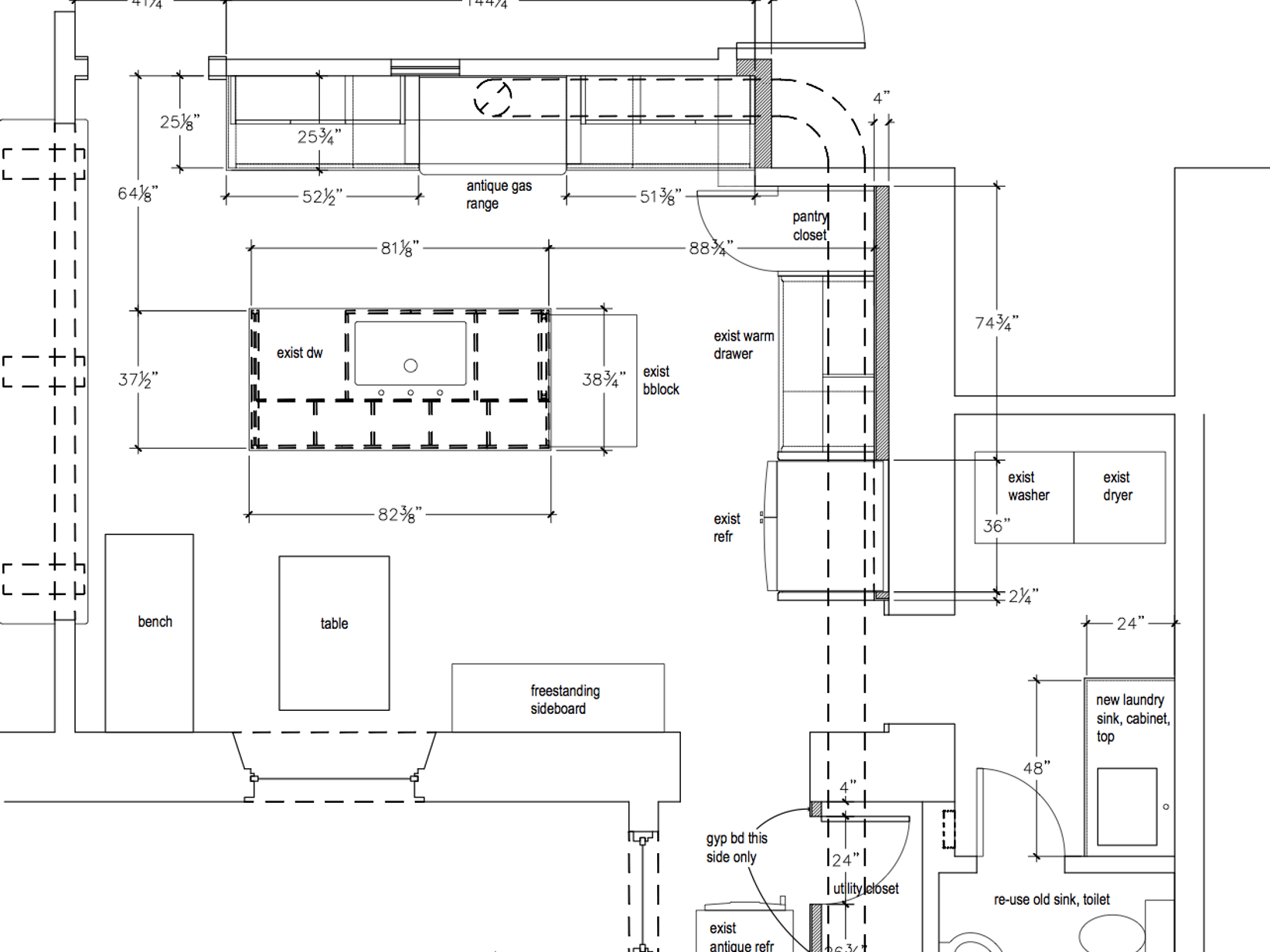
The new kitchen is a study in eclectic harmony, created largely from repurposed showroom and product rollout display cabinetry, salvage pieces and antique shop finds, with a few brand new made to order pieces – a diverse cast of characters. The range wall features his Glasgow series cabinetry, inspired by the early 20th century work of Charles Rennie Mackintosh, and of Eliel Saarinen, with a vintage 1957 Roper Supermatic gas range sparkling under an exhaust hood of copper and stainless steel. His Logan Inset cabinetry, from an earlier trade show introduction, surrounds and adjoins the refrigerator. A door rescued from a janitor’s closet conceals the pantry cabinet. The laundry room, powder room, additional pantry and a utility closet are fitted into otherwise difficult to use spaces.

The island is a minimalist dark gray block wrapped around a series of bright red open shelf compartments, alluding to Japanese lacquerware, glowing out of an otherwise somber palette of colors. An old cherry butcher block provides a conveniently lower work surface at the far end. A scrubbed pine table stands behind a cut down pew from the sanctuary, which faces its twin across a glass tabletop supported by a carved oak blanket chest, creating a casual dining spot in front of the large window that looks onto the side yard. An eleven foot long solid wood counter spans the opening between kitchen and dining and living room, making a large sociable space. Its unusual elements and unexpected groupings, collected over many years, create a lively design dialogue, intriguing and fun.

Scott A. Stultz

Designer

Scott A. Stultz

Photography

Nora E. Stultz

Scott A. Stultz Logomark
scott a. stultz & associates
314 castine rd
p.o. box 772
castine, maine 04421
start a project

207-326-5051